Local comercial en venta

Granada, Centro
159.900 €
Prezzo ribassato 169.900 € (-6%)
2 dormitorios 2 dormitorios
144 m2 144 m2
1 baño 1 baño

Local comercial en venta

Granada, Centro

Descripción anuncio

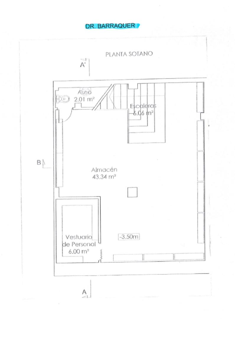
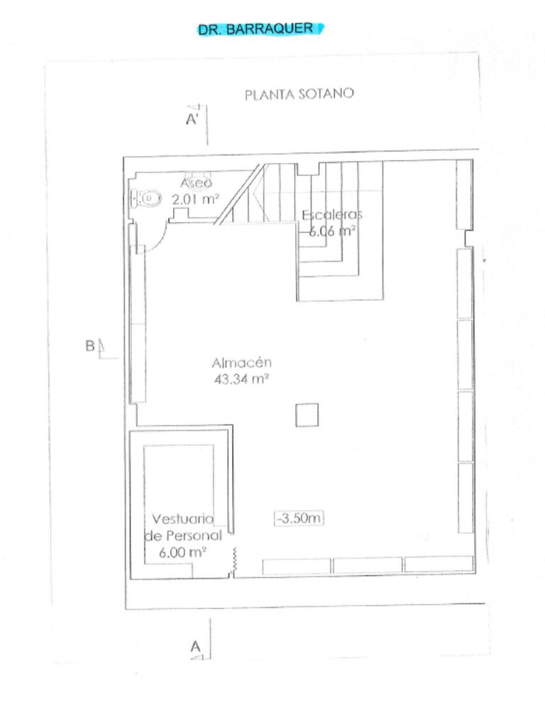
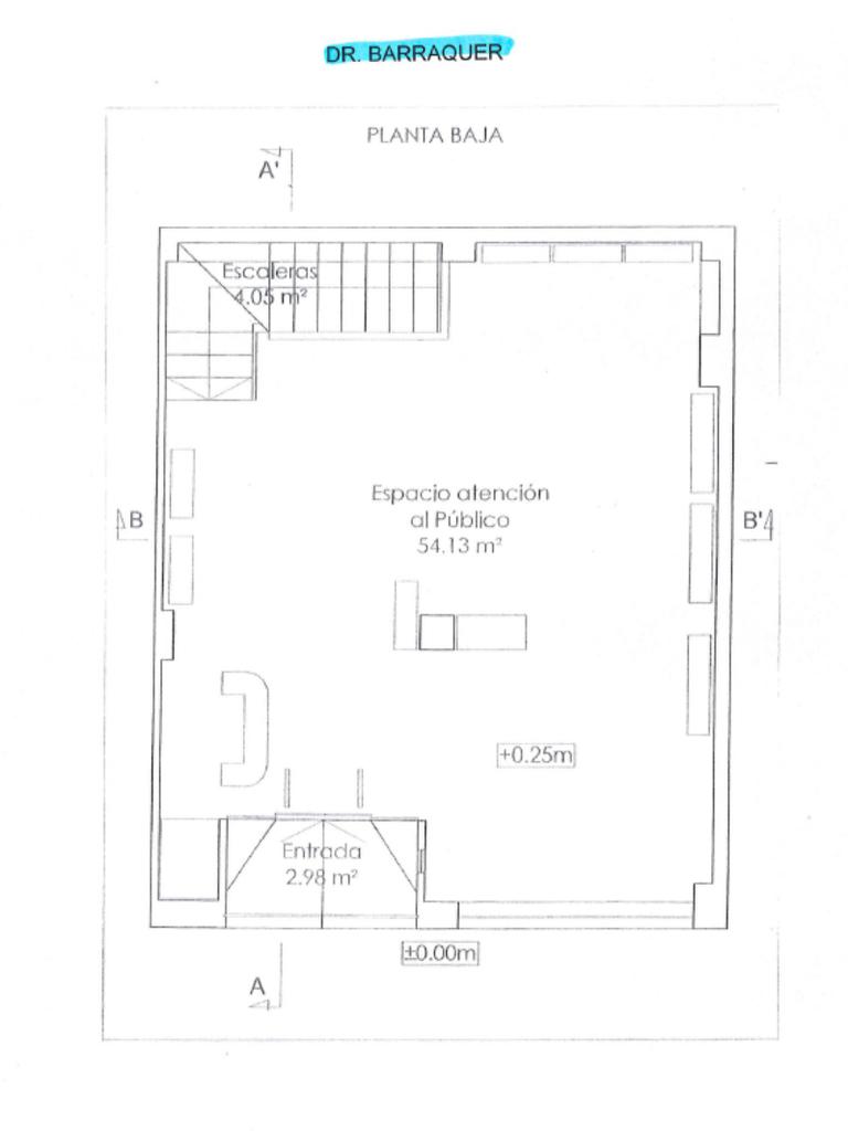
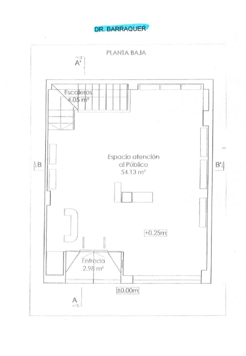
¡Oportunidad única en Granada! Este amplio local reformado de 144 m², distribuido en dos plantas, se encuentra en una ubicación privilegiada, justo en la famosa plaza de toros. Ideal para emprendedores que buscan establecer su negocio en un entorno dinámico y de alta afluencia. Con un gran escaparate que garantiza una excelente visibilidad, este espacio es perfecto para una tienda de menaje del hogar, ropa o cualquier otro comercio.

El local cuenta con todas las comodidades necesarias: aire acondicionado y calefacción en ambas plantas, así como sistemas de alarma para mayor seguridad. Además, la disposición de tomas de electricidad en las paredes facilita la instalación de cualquier equipo necesario. A tan solo un minuto de la parada de metro de La Caleta y cerca de varias paradas de autobús, el acceso es inmejorable.

No pierdas la oportunidad de invertir en un lugar neurálgico de Granada, donde el tráfico peatonal y la visibilidad son clave para el éxito de tu negocio. ¡Ven a verlo y descubre todo lo que este local puede ofrecerte!

Ver más

Características

Ref.:
630752
Aire acondicionado:
Centralizada
Calefacción:
centralizada
Libre:
Tipo de inmueble:
Media
Año de construcción:
1967
Ver más
Precio Precio
159.900 €
Cuota mensual Cuota mensual
€ 504 / mes
Cuota comunidad anual Cuota comunidad anual
€ 26

Clase energética

Este inmueble está esperando clase energética
Año de construcción:
1967

Servicios cercanos

Transporte público Transporte público
Granada
Granada
450 m
Caleta
Caleta
170 m
Estación Ferrocarril
Estación Ferrocarril
490 m
Doctor Azpitarte 1 - Cáritas
Doctor Azpitarte 1 - Cáritas
70 m
Doctor Olóriz 14
Doctor Olóriz 14
80 m
Colegios Colegios
San Agustín
60 m
Escuela Arte Granada
70 m
Aulario de la Escuela Internacional de Posgrado
270 m
Colegio Los Cármenes
310 m
Escuela Superior de Barbería
320 m
Farmacias Farmacias
Lda. R. Pinto Escalante
220 m
Farmacia Virgen de las Nieves
250 m
Farmacia Carrillo Perálvarez
290 m
Farmacia
310 m
Farmacia Sáenz de Buruaga
320 m
Hospitales Hospitales
Hospital Universitario Virgen de las Nieves
180 m
Centro de Consultas Externas
210 m
Unidad de Cirugía de Alta Resolución
230 m
Hospital de San Rafael
850 m
Hospital de San Juan de Dios
890 m
Supermercados Supermercados
Dia
250 m
Dani
260 m
Covirán
300 m
Mercadona
410 m
Al Sur de Granada
970 m
Tiendas Tiendas
Bazar El Corte Andalucía
60 m
Alimentación Andaluces
210 m
La Tahona Del Yayo Rafael
220 m
Eskandalo
240 m
Lencería Dana
240 m
Bar Bar
Corazón Latino
270 m
Nido del Búho
300 m
Primera Estación
310 m
Los Pescadores
340 m
FlamenKo
400 m
restaurantes restaurantes
La Bodeguita
50 m
Subarashi Sushi Granada
60 m
Restaurante El Coso
120 m
Tendido 1
140 m
Altamura
210 m
Ver más

Precio rebajado de €1 (6%%)

Calcula tu hipoteca

Simple y sin compromiso
Entrada
%
al mes
Hipoteca
%
El resultado de esta simulación es orientativo. Los datos indicados no corresponden a condiciones reales de productos y no implican compromiso, obligación o vínculo jurídico-legal para el Grupo Tecnocasa.

Solicita un asesoramiento

Introduce tus datos
GRACIAS POR CONTACTAR CON NOSOTROS.
Esta oficina de Kìron se pondrá en contacto contigo lo antes posible para ofrecerte un asesoramiento financiero más completo y acorde a la información que nos has facilitado.
Franquiciado
Estudio Los Carmenes 2021 Sl
Plza de San Isidro, 5 Local 18012 Granada (GR)
Plza de San Isidro, 5 Local 18012 Granada (GR) Zona: TRIUNFO – PLAZA TOROS
Lunes a Viernes 09.00 a 14.00- 17.00 a 20.00 Sábados: 10.00 a 14.00

Nuestro equipo


  • Raul Bailon Martinez
    Franquiciado

  • Laura Cañizares
    Auxiliar Administrativa

  • Manuel Lopez
    Colaborador

  • Estafania Ruiz
    Colaborador

  • Ines Martin
    Auxiliar Administrativa

  • Angelia Ontiveros
    Responsable
Franquiciado
Estudio Los Carmenes 2021 Sl
Plza de San Isidro, 5 Local 18012 Granada (GR)

Franquiciado
Estudio Los Carmenes 2021 Sl
Franquiciado
Estudio Los Carmenes 2021 Sl

2025 Ibero Group Tecnocasa Services, S.L.U. - CIF B-65870776 - C/ Pallars, nº 1-3 Parque de Negocios Mas Blau II, 08820, El Prat de Llobregat (Barcelona-España). Red en franquicia - Cada sociedad franquiciada tiene su propio titular y es independiente del franquiciador.

Política de privacidad | Aviso legal | Pólitica de las Cookies | Información al consumidor | | Canal ético